24 homes found in Rowlett
For Sale
Gallery
Description
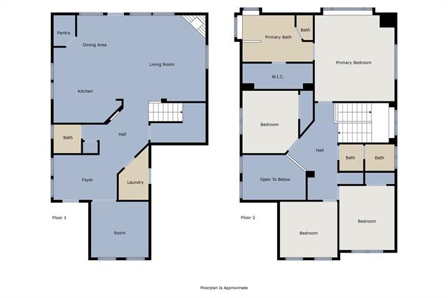
Step into this beautifully updated 4-bedroom, 2.5-bath home nestled on a corner lot in a quiet cul-de-sac. Featuring hardwood floors throughout most of the home and elegant plantation shutters, this home exudes warmth and style. A private study with built-in cabinets offers the perfect work-from-home space. The chef’s kitchen is fully equipped with double ovens, gas cooktop, pot filler, and an osmosis water filtration system (serviced in 2025). Recent upgrades include a water softener for the entire house, new irrigation system (2023), new sod across the entire yard (2023), new garage door motor, new hot water heater (2021), and new heating unit. The primary bathroom has been refreshed with new countertops, fixtures, and shower, while the guest bathroom features a refinished tub, new granite countertops, fixtures, and updated bathtub tile. Additional updates include new ceiling fans (2021) and a new attic ladder (2024). Refrigerator will convey with the home. Located within walking distance to Target, LA Fitness, and a variety of eateries and shops, this home offers unbeatable convenience while tucked away in a peaceful neighborhood setting. This home is move-in ready with thoughtful improvements already done—schedule your showing today!
Property details
Residential
List Price $420,000
Reduced $10000
$177 per SQFT
$325 Annually HOA Fee
2,374 sqft
4 bedrooms
3 bathrooms
2 garages
Built in 2001
Two stories
0.23 acres
                                               
Additional details
School District: Garland ISD
Elementary: Choice Of School
Middle or Junior School: Choice Of School
Junior High School: Choice Of School
High School:
MLS Number: 21016546
Subdivision: Liberty Creek
Heating:
Cooling:
Flooring: Carpet,Wood
                                                                                           
                                       
                                       
See GPS
Listed by Competitive Edge Realty LLC
The database information herein is provided from and copyrighted by the North Texas Real Estate Information Systems, Inc. NTREIS data may not be reproduced or redistributed and is only for people viewing this site. All information provided is deemed reliable but is not guaranteed and should be independently verified. The advertisements herein are merely indications to bid and are not offers to sell which may be accepted. All properties are subject to prior sale or withdrawal. All rights are reserved by copyright. Copyright © NTREIS 2025. All Rights Reserved.
LaTanya Whitman
214-674-1164
800-424-5088
TREC # 531655
Enter code: